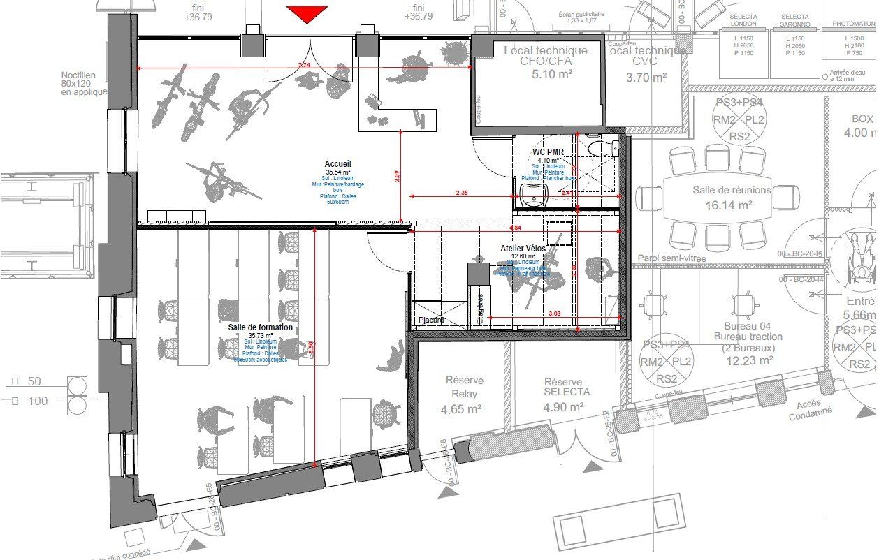
Centre de formation et atelier de réparation vélo & mobilités douces
Maîtrise d’ouvrage & projet :
SAS MOBILITY
Mission & date :
Mission permis de construire
SAS MOBILITY
Réaménagement d'un local en centre en de formation
Surface du local : 88 m²
Gare de Juvisy (91) - Batiment CondorcetMission & date :
Mission permis de construire
Déclaration préalable en cours d'instruction
