LE MEE SUR SEINE - FAISABILITÉ 2011
Maîtrise d’ouvrage & projet :
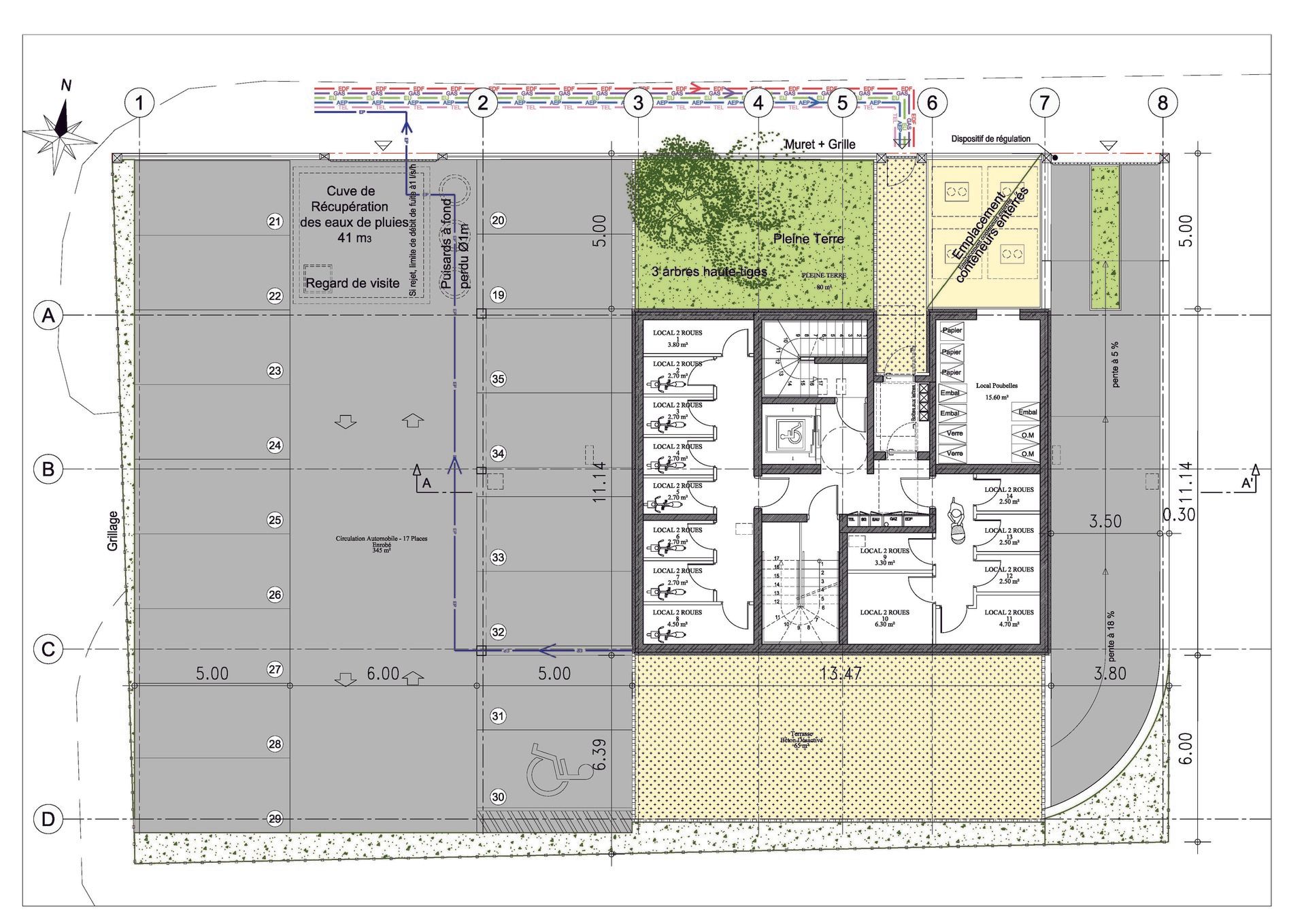
IMMOTER
Construction de 20 logements, 1 141,32 m²
35 stationnements répartis en 18 places au
Le Mee sur Seine (77 350)
IMMOTER
Construction de 20 logements, 1 141,32 m²
35 stationnements répartis en 18 places au
sous-sol dont 1 PMR, le reste en RdC 1 PMR
